系统:Android 大小:236.6M
类型:办公必备 更新:2022-07-11




magicplan软件是一款在装修中经常用到的软件,它可为装修的朋友提供一个三维查看的功能,让你可以更快速的获取的工作量的信息,magicplan软件利用传感器和摄像头,为用户提供准备的数据信息,同时你也可以建立一个平面图,需要的朋友不妨下载试试。
使用magicplan产生全面的工作量估算值,三维查看空间,规划DIY项目,或者用于家庭装修。
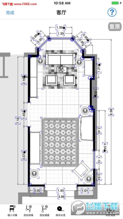
在几分钟内创建平面图,并可以轻松编辑。单击即可添加对象、照片、注释、产品价格表、任务和税金。
购买平面图,以PDF、JPG、DXF、PNG、SVG和CSV的格式呈现。与任何magicplan用户分享。并可以用3D形式查看。将它们作为互动平面图发布在网络上 - 或将其存储在magicplan Cloud上,以便于在多个设备上查看和编辑它们。
Training session available in English at http://www.magic-plan.com/support/training/
magicplan是房地产经纪人、工匠、空间调整师、消防员、建筑师、验房员、室内设计师、小型企业、家具零售商和喜欢自己动手人群的理想应用。
MagicPlan利用设备中的传感器(陀螺仪和加速度计)以及摄像头。对于每一台设备,MagicPlan都需要进行校准才能正常工作。由于安卓设备的多样性,不是每一台设备都能支持房间捕捉功能。如果您的设备不支持但具备捕捉的功能,您可以在我们对您的设备进行支持前先自行进行校准。
MagicPlan是对于房地产经纪人、工艺操作人员、调停人、消防员、建筑师、验房人员、室内设计师、小型商户、家具零售商和其他相关行业人员来说,最理想的一款应用软件。
一.创建一个新的平面图
(1)在主菜单界面上点击“New Plan”按钮,新建一个你属于的平面图。
(2)点击后会弹出选择框,让你在Residential(住宅) 和Commercial(商业用地)之间选择一个,根据你自己的需要进行相应的选择吧!
(3) 再输入一些相关的信息,如名字,街道,城市,国家,邮政编码等等(拉动到最底部,点击“Delete”按钮便可删除该平面图,当然你可以通过回收站图标进行删除)
(4) 可以为你的平面图设置一个封面,点击“Add a Picture”上方的+按钮,你可以选择重新拍一张,也可以从相册中选择。点击“New Floor”即可以创建一个新的楼层,之后选择你所需要的房间类型。
二.通过摄像头捕获你的房间
想要创建一个完整的楼层平面图,你需要捕捉每一个房间。为了捕捉一个房间,你需要捕获了房间的每一个角落。而你所站的位置十分重要,必须保证你站立的地方能够看到房间中最多数量的角落。一旦你开始捕获房间里的角落,你需要保持不移动地站立在同一个地方,手持你的iPhone向四周旋转,注意手肘尽量靠近身体,这样可以获得更好地效果。
(1) 为了捕捉好一个角落,根据画面上的绿色指针来定位,你需要将绿色指针定位在墙壁和地板之间的十字交叉处,对准后就点击屏幕右侧的角落图标。
(2) 你可能也注意到了屏幕左侧的大门图标,它的作用是来捕捉门的:指针来到门的一边时按一下,来到另外一侧时再按一次即可。
当你捕获完整个房间的角落时,便会呈现一幅房间的平面图了!
三.修改你的平面图
当房间平面图完成后,你便可以发挥你的空间想象力进行设计了!
(1) 黑色边缘代表墙壁,选中某一墙壁后会变红,同时出现拉伸箭头,你可以进行长度上的调整。
(2) 两墙壁之间的角度也是可以进行调整的,选中两墙壁交界处后出现灰色圆圈,同样也可进行拉伸。注意,如果是完全的正方形的房间,角度是不能够调整的!
(3) 你可以通过选中某墙壁,添加门,窗或楼梯。当然还可以在房间内添加其他家具设施,像沙发,床等!这个得靠大家的空间设计能力啦!
(4) 想要为你设计好的房间添加描述或者注视,只需要点击右下方的“ i ”,输入相应信息即可。
四.组合房间布局
假如你将每个房间都设计修改完成,那么接下来你要做的就是将各个房间进行调整和组合。选中所要调整位置的房间进行拖动(可以进行旋转),放置在你想要放置的位置上。这里你可能会注意到,旋转圆圈的颜色会改变,绿色代表房间的方向对应另外房间的方向,红色则代表不对应!
五.添加房间或其他
房间布局完成后,可以添加壁橱,填充墙,方型房间等内容。
六.修正你的设计
当以上步骤都完成后,我们还需要做的一件事情就是精确地调整设计中的一些方向和距离,这可能有点专业了,不过相信细心总能够为你的设计增色不少的!
该版本修复了一个在启动应用程序时导致崩溃的错误。谢谢你的反馈